Geisinger Health System will expand its presence in Scenery Park with the construction of a new primary care clinic.
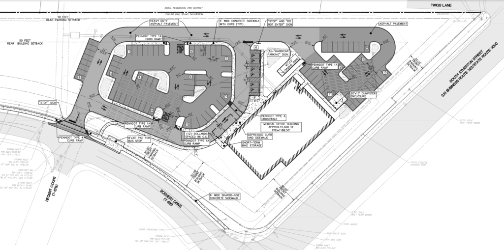
College Township Council on May 20 unanimously approved a final land development plan for the new 15,400-square-foot facility at the corner of Scenery Drive and South Atherton Street. Currently an empty field, the location for the new building is across Scenery Drive from Geisinger’s existing Scenery Park complex.
Primary care practices will be relocated from the existing complex to the new one-story building, while specialty practices will be expanded in the current Scenery Park facility.
“We’ve kind of outgrown our space at Scenery Park and so as a way to find more room for our growing clinical program — we’ve owned this property for quite awhile and now we’re looking to develop it to relocate primary care, some lab services and X-ray,” Matthew Nussbaum, Geisinger vice president of medicine, said. “Then the plan will be to backfill some of our specialties that are growing at Scenery Park.”
Dermatology and oncology are already expanding, Nussbaum said. Geisinger has plans for other specialties like rheumatology and nephrology “to grow organically over the next couple of years and need space for additional providers.”
Nussbaum said in the fall, when a sketch plan was presented to planning commission, that the new facility would have 11 primary care providers, possibly increasing to 12.
Entrance and exit for the new facility will be from Scenery Drive and aligned with Regent Court. A driveway will have a two-lane drop-off area under a canopy at the entrance to the building then circulate into the main parking area, which will have 97 parking spaces, Chris Keiser, project manager for architect Larson Design Group, said.

Geisinger will construct new sidewalks along the length of the property on Scenery Drive and South Atherton Street.
Stormwater management facilities will be underground. A swale will be placed along the southeast edge of the property bordering Twigs Lane and six rain gardens will be included throughout the parking area.
Additional landscaping is planned for screening along the Twigs Lane border, as well as within the parking area.
The building will be constructed with “a palette of materials common in central Pennsylvania,” including charcoal gray wood and tan stone, Geisinger senior architect Lawrence Huber said.
“We’ve tried to use this as our color palette for all our new facilities going forward so there’s a continuity of appearance,” Huber said, noting a similar look at the new clinic that recently opened in Lock Haven.
Lighting will be required to meet township code, which prohibits light trespass onto neighboring properties.
Geisinger has owned the property where the new building will be constructed since 1994, according to county records. It acquired the site of the existing Scenery Park complex in 1989.
